207 & 209 Fowler Road Guildford, Guildford Sold Property

207 & 209 Fowler Road, Guildford

1
1
1
Sold for $2,500,000
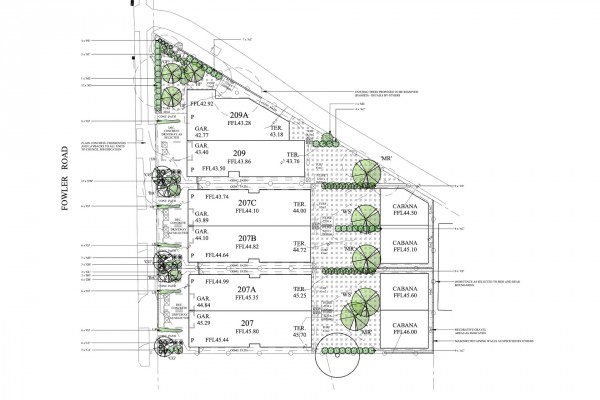
DA APPROVED SITE - 2,037SQM WITH 56.6M STREET FRONTAGE!

SOLD BY STARR PARTNERS AUBURN. CALL 9749 4949 FOR A FREE MARKET UPDATE.

An excellent opportunity to acquire this strategically located DA Approved site. This huge block of land offers lots of options to a potential buyer!

On the high side of the street, impressive 2,037sqm combined block with wide street frontage, knockdown and rebuild as approved, 3 sets of duplexes or explore your options. Set in a prime position, with an easy access to Guildford, Merrylands and Parramatta CBD. CALL US TODAY FOR MORE INFORMATION!

* Excellent opportunity for developers, investors or builders
* Two blocks side by side, scope to buy together DA approved
* Approved for 3 sets of duplexes or explore your options
* Conveniently located 1.4km to Guildford Railway Station and shops
* Easily accessible to motorway connections and Parramatta CBD

DISCLAIMER: Whilst every effort has been made to ensure the accuracy and thoroughness of the information provided to you in our marketing material, we cannot guarantee the accuracy of the information provided by our Vendors, and as such, Starr Partners Auburn makes no statement, representation or warranty, and assumes no legal liability in relation to the accuracy of the information provided. Interested parties should conduct their own due diligence in relation to each property they are considering purchasing. All photographs, floorplans, maps and images are representative only, for marketing purposes.

auction date

Sat 11th May 1:30pm