*Hidden behind a leafy green façade this home showcases charm within a garden oasis
*Stunning green gardens with alfresco space and lawn which backs onto a reserve
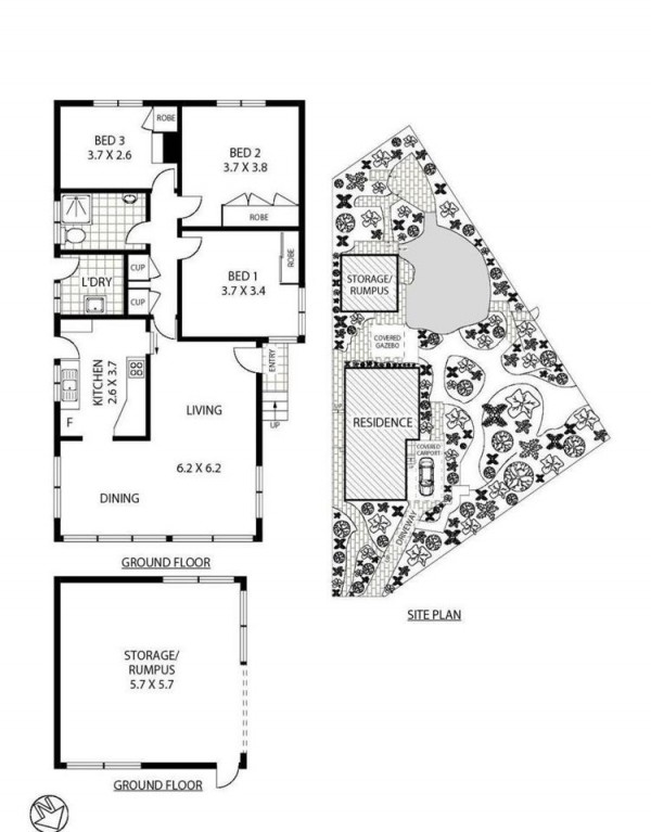
*Well maintained 3 bedroom home
*Built in robes to all rooms
*Combined lounge and dining areas
*Air conditioning
*Neat original gas kitchen
*Spacious modern bathroom
*Internal laundry
*Enormous shed
*Single carport
*800 metres to Blacktown Hospital
*2.2km to Blacktown train station
*Positioned amongst quality homes
