SOLD BY STARR PARTNERS AUBURN. CALL 9749 4949 FOR A FREE MARKET UPDATE.
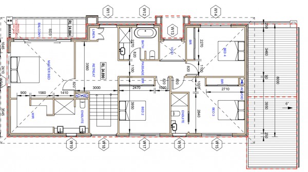
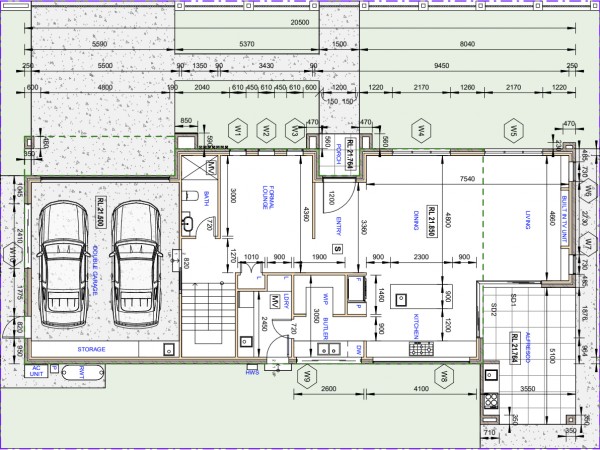
Selling this old house at land value, here's a fantastic opportunity for someone wanting to knock down and build their architecturally designed dream home, close to all amenities! This well-designed floor plan allows for separate living flowing onto a cosy generous private alfresco, formal dining off an open plan kitchen with island and butler's pantry, formal lounge, downstairs bathroom plus internal laundry and double lock up garage! Upstairs offers 4 good sized bedrooms with built-ins, walk-in robe and balcony to main, 2 ensuites plus separate bathroom and retreat/study area!
An amazing design perfect for a busy executive family, ready to start building now!
* Selling at land value - knock down and build
* DA approved, ready to commence
* Architecturally designed dream home
* Separate living flowing onto private alfresco
* Formal dining, formal lounge room
* Open plan kitchen with island and butler's pantry
* Downstairs bathroom, internal laundry, double lock up garage
* 4 good sized bedrooms with built-ins, walk-in robe and balcony to main
* 2 ensuites plus separate bathroom and retreat/study area
DISCLAIMER: Whilst every effort has been made to ensure the accuracy and thoroughness of the information provided to you in our marketing material, we cannot guarantee the accuracy of the information provided by our Vendors, and as such, Starr Partners Auburn makes no statement, representation or warranty, and assumes no legal liability in relation to the accuracy of the information provided. Interested parties should conduct their own due diligence in relation to each property they are considering purchasing. All photographs, maps and images are representative only, for marketing purposes.
